Откройте дверь в ваш будущий дом — место, где комфорт встречается с практичностью, а уют становится частью вашей жизни. Этот двухэтажный коттедж из экологичных материалов сочетает в себе надежность, энергоэффективность и современный дизайн.
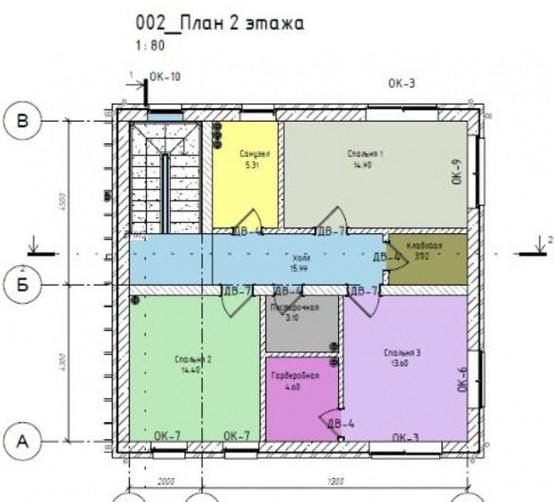
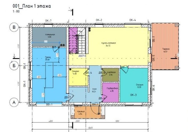
Представьте себе просторную кухню-гостиную, где собирается вся семья, а уютная терраса приглашает насладиться свежим воздухом и солнечными днями. Четыре светлых спальни обеспечат каждому члену семьи личное пространство и спокойствие. В доме предусмотрены несколько гардеробных и постирочная — всё для вашего удобства и порядка. Гараж добавляет комфорт и безопасность для вашего автомобиля. Надежные материалы гарантируют долговечность и минимальные затраты на содержание.
Это не просто дом — это ваше будущее, место, где создаются счастливые воспоминания. Не упустите шанс стать владельцем этого уникального жилья!
Свяжитесь с нами сегодня и начните новую жизнь в доме, который создан для вас!
Выбор местоположения
Мы свяжемся с Вами в течение дня.