Дом сдается в отделке white box. Гипсовая штукатурка Knauf под обои.
Характеристики:
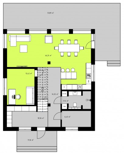
Дом: 167,4м2 (полезная площадь, без террасы и крыльца),
● Потолки 2,85 -5,7м2;
● 4 спальни
● Кухня-столовая 40,31м2;
● 2 санузла;
● Котельная 6,43м2;
Комплектация дома:
Фундамент: Ребристая плита;
Материал наружных стен: Автоклавный газобетон (Сибит) 300мм + утеплитель 100мм. Далее выполнена штукатура;
Внутренние несущие стены: Автоклавный газобетон (Сибит) 300мм.
Перекрытия: Монолитные;
Кровля: Стропильная система обработана антисептиком. Профлист 0,45 мм. Утепление 200 мм;
- Дверь входная: Тëплый алюминий с терморазрывом и тонированным стеклом;
-Окна: Энергоэффективный 5ти камерный профиль Veka, c замкнутым армированием, стеклопакет 40 мм. Фурнитура Winkhaus;
- Электромонтаж: Провода использованы ГОСТ ВВГнг LS. Все магистрали в гофре, на каждую комнату установлен отдельный дифференциальный автомат. Заземление.
В Щите есть реле контроля напряжения, которое защитит бытовую технику от нежелательных перепадов напряжения;
- Отопление: Тёплые полы выполнены с шагом 15 см в каждой комнате отдельный контур, что позволяет регулировать температуру в каждом помещении по разному. Электрический котел и бак теплообменника выполнен из нержавеющей стали, так же как и тэны. Разводка умного отопления;
- Водопровод Выполнен по технологии Axiopress с использованием трубы и фитингов PEXa. Реализована циркуляция горячей воды, что позволяет практически сразу пользоваться горячей водой. Вся система перед заливкой отпрессована давлением 8 бар;
- Вентиляция: Естественная;
- Канализация: Переливной септик V=7,5м3;
- Пол: Стяжка; Септик.
Выбор местоположения
Мы свяжемся с Вами в течение дня.