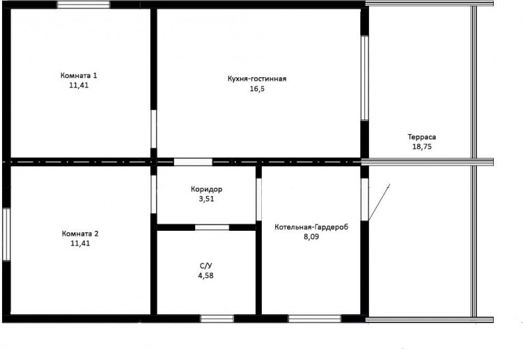
Дачный 82,5 м² — уютное пространство для отдыха на природе. Одноэтажная планировка делает его удобным и функциональным: сразу у входа — просторная прихожая, где легко разместить вещи. Дом сочетает практичность и теплоту: продуманная планировка экономит место без ущерба для комфорта, качественные материалы гарантируют уют в любую погоду, а естественное освещение создаёт лёгкую, расслабляющую атмосферу. Это место, где рождаются воспоминания о семейных выходных, летних вечерах и спокойном отдыхе вдали от городской суеты.
Комплектации:
ДОМОКОМПЛЕКТ 1 230 000 р.
СТАНДАРТ 3 800 000 р.
КОМФОРТ 5 100 000 р.
КОМФОРТ+ 6 300 000 р.
Выбор местоположения
Мы свяжемся с Вами в течение дня.